|
|
Descriptions:
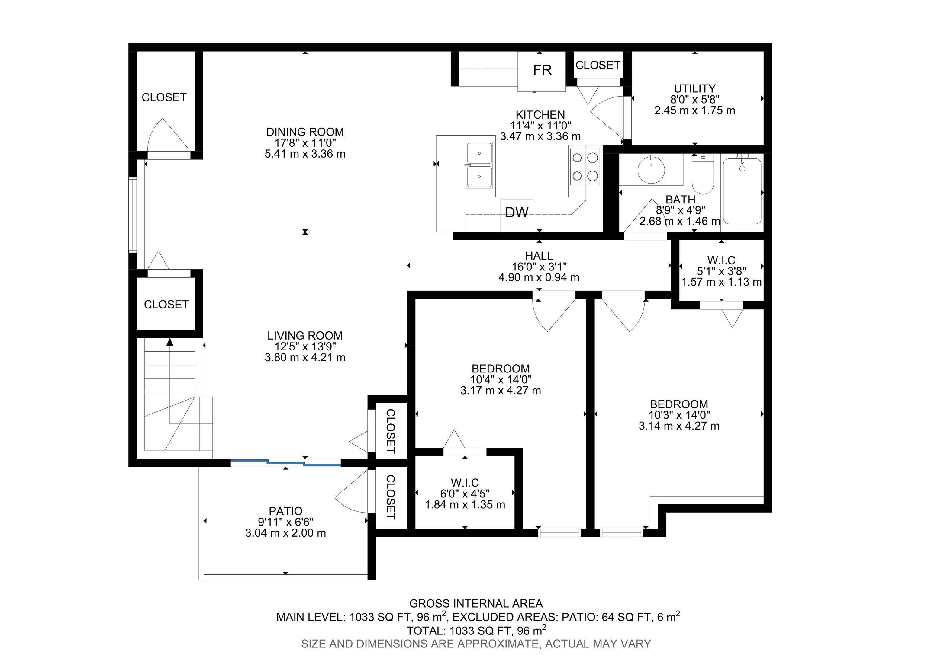
Welcome to this amazing 2-bedroom condo in the heart of St. Albert, just steps from the shopping mall, hospital, and downtown. You'll love the easy access to the river valley, trails, and public transit. Perfect for first-time buyers or savvy investors with an open-concept layout, and plenty of storage. The kitchen is equipped with granite countertops and maple cabinets, offering lots of space for storage and meal prep. The spacious primary suite is conveniently located next to the 4pc bath and second bedroom. Rounding out this well-designed property are a utility room with a washer/dryer, an energized parking stall, and a private patio.
|
|
|
| Includes: |
|
Dishwasher-Built-In, Dryer, Microwave Hood Fan, Refrigerator, Stove-Electric, Washer |
|
|
|
|
|
| Site Influences: |
| Low Maintenance Landscape, Playground Nearby, Public Transportation, Schools, Shopping Nearby |
|
| Legal Description: |
| ACCESS Legal Description |
|
| Location & Listing Info: |
| Neighbourhood: |
Inglewood (St. Albert)
|
|
|
|
|
|
|
| Property Info: |
|
| Property Type: |
Carriage |
| Home Style: |
Bungalow |
| Year Built: |
2007 |
| Total Floor Area: |
1,033 sq. ft. |
| Front Exposure: |
Southeast
|
|
|
|
|
|
| Exterior: |
|
| Exterior: |
Low Maintenance Landscape, Playground Nearby, Public Transportation, Schools, Shopping Nearby |
| Front Exposure: |
Southeast |
| Roof: |
Asphalt Shingles |
|
|
|
|
|
|
|
|
|
|
| Rooms: |
|
| Total Bedrooms: |
2
(Bedrooms Above: 2)
|
| Bathrooms: |
Full: 1
/ Half: 0
|
| Rooms Above: |
5 |
|
|
|
|
|
| Additional Info: |
|
| Heating: |
Y |
| Basement: |
None, No Basement |
| Basement Type: |
None, No Basement |
| Floor Finish: |
Ceramic Tile, Laminate Flooring |
| Parking: |
No Garage |
|
|
|
|
|
|
|
|
|
|
|
|
|
|
|
 |
Contact Sherrie Anderson -
8104 - 160 Avenue, Edmonton, Alberta, T5Z 3J8
|
|
|
|
|
|
|
|
|
|
Copyright 2025 by the REALTORS® Association of Edmonton. All Rights Reserved. Data is deemed reliable but is not guaranteed accurate by the REALTORS® Association of Edmonton. Data was last updated December 10, 2025, 7:28 pm. |
|
|
|
|
The data included on this website is deemed to be reliable, but is not guaranteed to be accurate by the REALTORS® Association of Edmonton.
MLS®, Multiple Listing Service®, and the associated logos are all registered certification marks owned by CREA and are used to identify real estate services provided by brokers and salespersons who are members of CREA. The trademarks REALTOR®, REALTORS® and the REALTOR® logo are controlled by The Canadian Real Estate Association (CREA) and identify real estate professionals who are members of CREA. Used under license.
|